椿树园2室1厅精装修
-
799万
总价
-
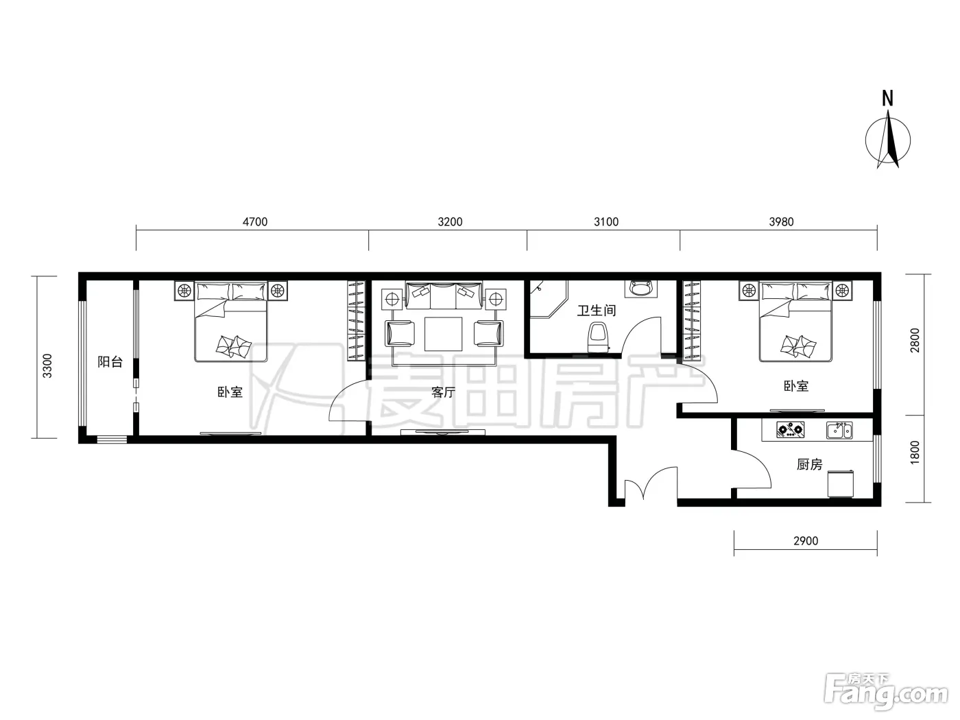
2室1厅1卫
户型
-
68㎡
建筑面积
买房加房产交流群,省钱不踩雷
3000+人正在热聊
-
单价
117500元/平米
- 挂牌价格解析
-
楼层
高层/13层
- 咨询楼层
-
套内
暂无数据
- 咨询套内使用面积
-
楼型
板楼
-
朝向
东西
-
装修
精装修
-
年代
1999
-
发布
2026-01-02
-
地铁
距4号线大兴线菜市口站约682米
-
咨询总首付
首付约413.7万
首付税费及佣金情况 -
深度测评
小区椿树园(西城-宣武门)
-
更多
楼户比、楼层高度、交易历史、抵押信息
房源描述(1)
-
核心卖点问经纪人
相信为您推荐的这套房子您一定会满意,赶快行动吧,先到先得! 房屋年代∶1999,面积∶68.0平方米,朝向∶东西 1. 小区配备高端物业管理,让你享受宾至如归的服务; 2. 小区人文素质高,是您的居家的绝佳选择; 3. 小区居住安静舒适,让您拥有高品质的生活环境; 4. 小区绿化率高,绿树成荫鸟语花香让您随时呼吸到新鲜空气。
-
小区配套问经纪人
椿树园规划住宅面积12万平方米,为高档商品住宅,住宅设计体现以人为中心的现代模式,大起居室、大开间布置,为您提供了理想的个性空间,大面积绿地,环境优美,小区外观雄伟,服务设施配套齐全,银行、邮局、书店等一应俱全,更有专业水准的物业管理提供全面周到的服务。
周边配套
交通综合评分
查看全部超过北京87.5%的小区
-
地铁公交
10.0
-
城际交通
5.0
本月均价 106703元/m²
环比上月 下跌 1.15%
同比去年 下跌 4.25%
猜你喜欢
同小区其它房源
-
131354元/㎡
本月挂牌均价
-
1.25%
环比上月
买房加房产交流群,省钱不踩雷
3000+人正在热聊
- 免费咨询
- 专业服务
- 区域解读
- 户型分析


