新房,北京岭秀270萬下叠别墅,业主急售可议,三面环山。
-
270万
总价
-
3室4厅4卫
户型
-
220㎡
建筑面积
买房加房产交流群,省钱不踩雷
3000+人正在热聊
加入群聊
-
单价
12273元/平米
- 挂牌价格解析
-
楼层
3层
- 咨询楼层
-
套内
219㎡
- 咨询套内使用面积
-
楼型
独栋
-
朝向
南
-
装修
简装修
-
年代
2023
-
发布
2026-01-01
-
咨询总首付
首付约99.7万
首付税费及佣金情况 -
深度测评
小区北京岭秀(平谷-平谷城区)
-
更多
楼户比、楼层高度、交易历史、抵押信息
房源描述(1)
-
核心卖点问经纪人
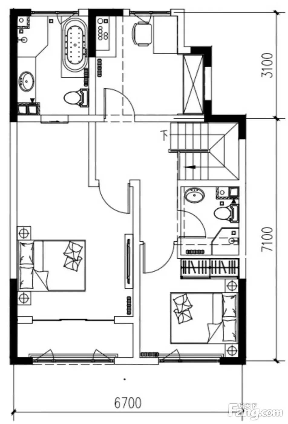
【房屋介绍】大平层设计,空间布局合理,餐厅客厅可分离,生活动线流畅; 【户型优势】3室2厅3卫,南北通透,每个房间都有良好的通风和采光; 【居住环境】小区绿化覆盖率高,空气流通好,居住舒适度佳; 【楼层情况】步梯楼,安静私密,无噪音干扰; 【推荐理由】朝向良好,阳光充足,居住氛围温馨。
-
业主心态问经纪人
【业主心态】业主因置换需求,诚意出售此房。房屋为上二下一设计,三室两厅三卫,南北通透,居住舒适。业主积极配合看房,有议价空间,手续齐全,随时欢迎洽谈。期待找到有缘人,共同开启美好家园!
-
小区配套问经纪人
小区地理位置佳,绿化环境优越整洁,居民素质高,物业管理完善,适宜居住
-
服务介绍问经纪人
本人专业北京房产21年经验,咨询不收费,看房不要钱。 视频全部为实景拍摄,拒绝虚假视频,虚假宣传价格,产品,主打 ,真实信息。 用心服务,交个朋友,珍惜彼此之间的缘分,希望带给您 的看房体验,同时也祝
-
税费分析房贷计算
关于本房的税费信息情况,请电话联系我,我将详细的为您讲解!
-
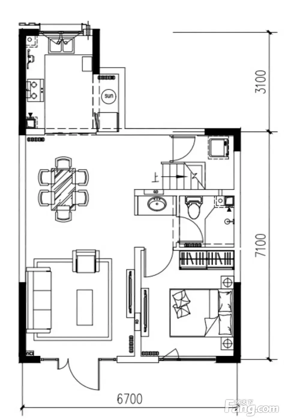
户型解读问经纪人
房屋拥有相对宽松的尺寸,布局通透,动静分离,设计豪华
周边配套
地址:夏各庄新城(平谷区环山路与主环路交叉口东南(南一路))
猜你喜欢
同小区其它房源
-
18862元/㎡
本月挂牌均价
-
0.73%
环比上月
买房加房产交流群,省钱不踩雷
3000+人正在热聊
加入群聊
- 免费咨询
- 专业服务
- 区域解读
- 户型分析
免责声明:房源信息由网站用户提供,其真实性、合法性由信息提供者负责,最终以政府部门登记备案为准。本网站不声明或保证内容之正确性和可靠性,购买该房屋时,请谨慎核查。入学情况仅凭历史经验总结,在此不承诺升学事宜。请您在签订合同之前,切勿支付任何形式的费用,以免上当受骗。


