阳光城君山墅5室3厅精装修
-
680万
总价
-
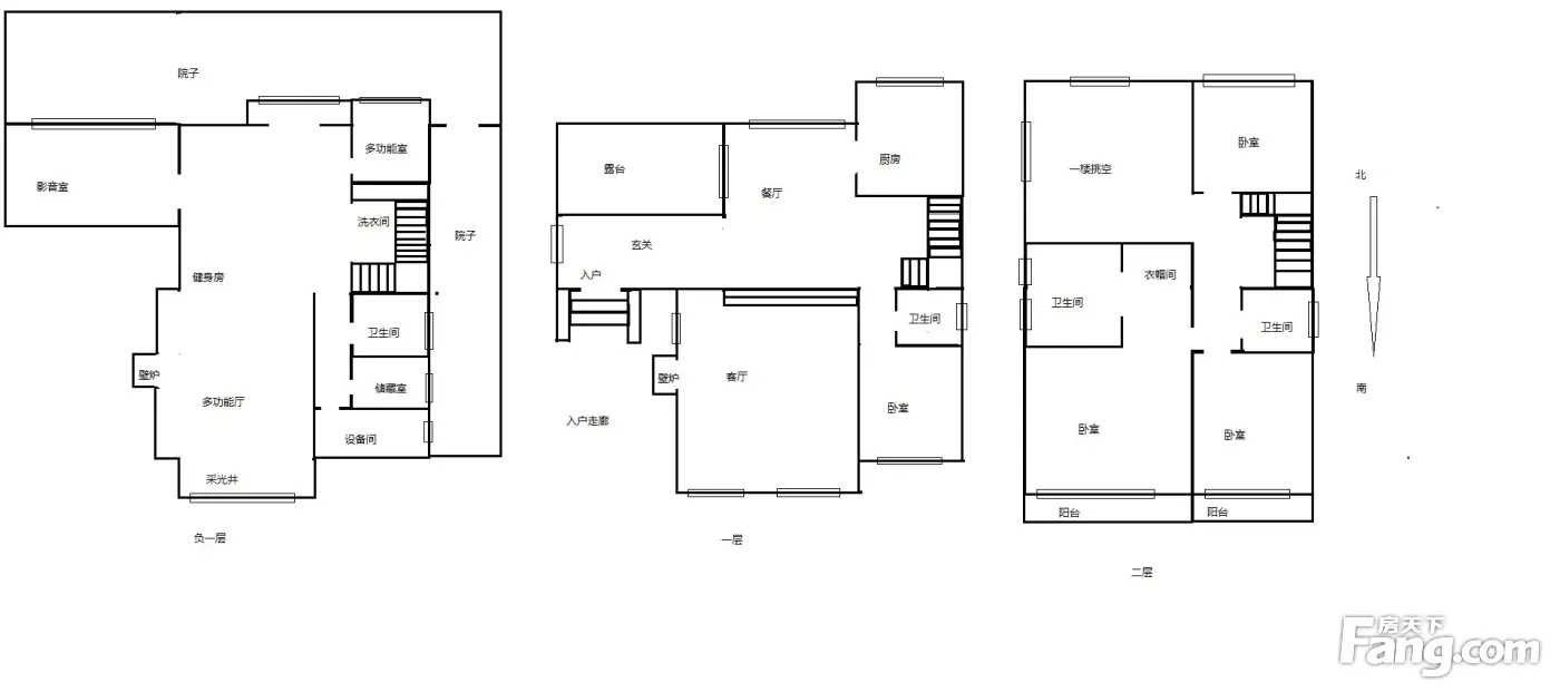
5室3厅4卫
户型
-
328.91㎡
建筑面积
买房加房产交流群,省钱不踩雷
3000+人正在热聊
加入群聊
-
单价
20674元/平米
- 挂牌价格解析
-
楼层
3层
- 咨询楼层
-
套内
暂无数据
- 咨询套内使用面积
-
楼型
独栋
-
朝向
南
-
装修
精装修
-
年代
2010
-
发布
2026-01-26
-
咨询总首付
首付约225.2万
首付税费及佣金情况 -
深度测评
小区阳光城君山墅(密云-密云水库别墅区)
-
更多
楼户比、楼层高度、交易历史、抵押信息
房源描述(1)
-
核心卖点问经纪人
相信为您推荐的这套房子您一定会满意,赶快行动吧,先到先得! 房屋年代∶2010,面积∶328.91平方米,朝向∶ 1. 小区配备高端物业管理,让你享受宾至如归的服务; 2. 小区人文素质高,是您的居家的绝佳选择; 3. 小区居住安静舒适,让您拥有高品质的生活环境; 4. 小区绿化率高,绿树成荫鸟语花香让您随时呼吸到新鲜空气。
周边配套
地址:(密云)密溪路33号(水库风景区内),密溪路33号院五区
猜你喜欢
同小区其它房源
户型齐全,主打户型方正,采光充足其他居
阳光城君山墅户型主要有312平-365平的户型方正,采光充足的其他居 、392平-392平的户型方正,明卫,客厅朝南的四居 、316平-316平的户型方正,采光充足,带露台的五居 。
*获取完整户型报告,同时会有免费语音讲解服务
-
17558元/㎡
本月挂牌均价
-
1.31%
环比上月
买房加房产交流群,省钱不踩雷
3000+人正在热聊
加入群聊
- 免费咨询
- 专业服务
- 区域解读
- 户型分析
免责声明:房源信息由网站用户提供,其真实性、合法性由信息提供者负责,最终以政府部门登记备案为准。本网站不声明或保证内容之正确性和可靠性,购买该房屋时,请谨慎核查。入学情况仅凭历史经验总结,在此不承诺升学事宜。请您在签订合同之前,切勿支付任何形式的费用,以免上当受骗。

