保利蔷薇2室1厅精装修
-
779万
总价
-
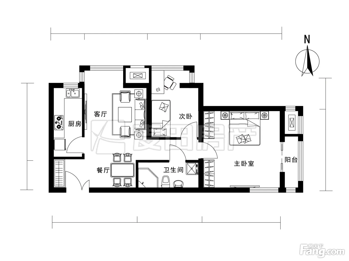
2室1厅1卫
户型
-
85㎡
建筑面积
买房加房产交流群,省钱不踩雷
3000+人正在热聊
-
单价
91647元/平米
- 挂牌价格解析
-
楼层
高层/16层
- 咨询楼层
-
套内
暂无数据
- 咨询套内使用面积
-
楼型
塔楼
-
朝向
东北
-
装修
精装修
-
年代
2008
-
发布
2026-01-25
-
地铁
距7号线广渠门内站约385米
-
咨询总首付
首付约386.7万
首付税费及佣金情况 -
深度测评
小区保利蔷薇(东城-广渠门内)
-
更多
楼户比、楼层高度、交易历史、抵押信息
房源描述(1)
-
核心卖点问经纪人
相信为您推荐的这套房子您一定会满意,赶快行动吧,先到先得! 房屋年代∶2008,面积∶85.0平方米,朝向∶东北 1. 小区配备高端物业管理,让你享受宾至如归的服务; 2. 小区人文素质高,是您的居家的绝佳选择; 3. 小区居住安静舒适,让您拥有高品质的生活环境; 4. 小区绿化率高,绿树成荫鸟语花香让您随时呼吸到新鲜空气。
-
小区配套问经纪人
保利蔷薇位于东二环内、坐拥两广路畔与百年学府汇文中学,快速畅达新世界中心、瞰建国门商圈、观CBD商圈,傲然城市中心,繁华触手可及。南派中心园林面积达3000平米,北侧步行商业街景观面积2500平米,门口设置景墙,东侧为狭长绿荫走廊。城市中罕有大面积集中园林景致在保利蔷薇得以珍贵呈现。
周边配套
交通综合评分
查看全部超过北京95.1%的小区
-
地铁公交
10.0
-
驾车出行
7.0
-
城际交通
4.5
本月均价 107069元/m²
环比上月 下跌 1.4%
同比去年 下跌 0.21%
猜你喜欢
同小区其它房源
户型齐全,主打明厨,明卫,客厅朝南,全明格局一居
保利蔷薇户型主要有40平-68平的明厨,明卫,客厅朝南,全明格局的一居 、58平-98平的户型方正,明厨,主卧朝南的二居 、104平-112平的户型方正,明厨,明卫,客厅朝南的三居 。
*获取完整户型报告,同时会有免费语音讲解服务
-
80780元/㎡
本月挂牌均价
-
1.41%
环比上月
买房加房产交流群,省钱不踩雷
3000+人正在热聊
- 免费咨询
- 专业服务
- 区域解读
- 户型分析

