东城,单价低,客厅双卧朝南,超大宽敞会客厅,采光好,方便看
-
1100万
总价
-
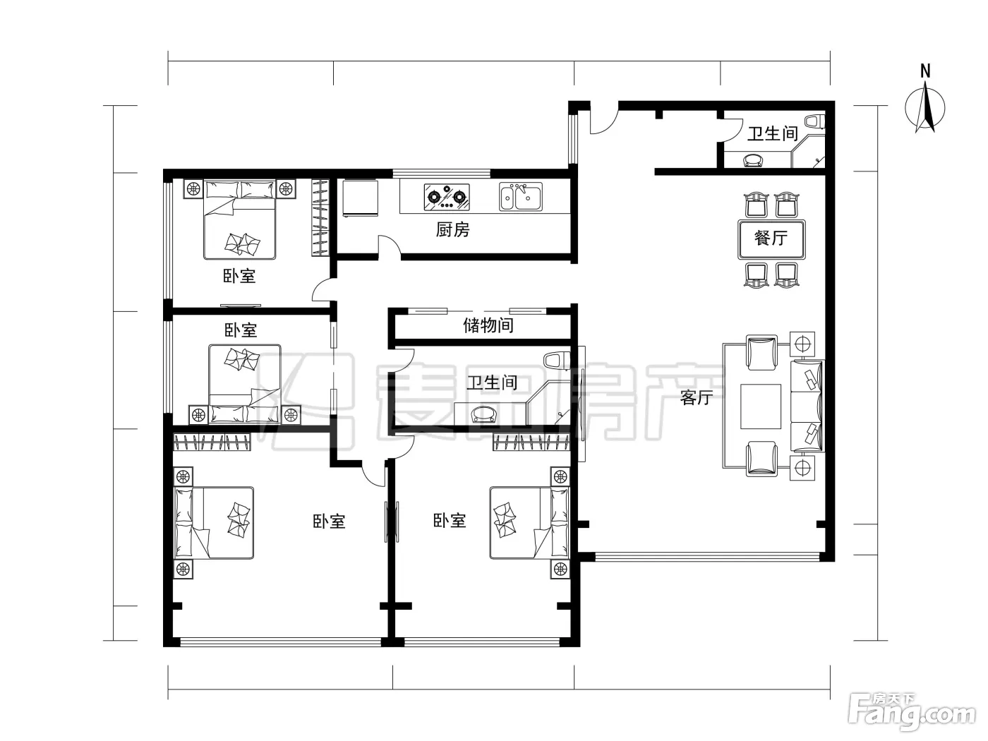
4室2厅2卫
户型
-
176.08㎡
建筑面积
买房加房产交流群,省钱不踩雷
3000+人正在热聊
-
单价
62472元/平米
- 挂牌价格解析
-
楼层
低层/13层
- 咨询楼层
-
套内
暂无数据
- 咨询套内使用面积
-
楼型
塔楼
-
朝向
西南
-
装修
精装修
-
年代
2000
-
发布
2025-12-04
-
地铁
距7号线广渠门内站约793米
-
咨询总首付
首付约373.9万
首付税费及佣金情况 -
深度测评
小区白桥苑(东城-广渠门内)
-
更多
楼户比、楼层高度、交易历史、抵押信息
房源描述(1)
-
核心卖点问经纪人
相信为您推荐的这套房子您一定会满意,赶快行动吧,先到先得! 房屋年代∶2000年,房屋面积∶176.08平方米, 1. 房子位置在花市街东头,临东便门,临广渠门,崇文门,临护城河公园 2. 房子户型方正大气,超大宽敞的会客厅,会客厅与餐厅功能区分开,两卧室全凸朝南,两卧室朝西,厨房朝北,双大卫生间,每个位置都很大很舒适很好用 3. 房子虽然楼层不高,但是采光很好,全天都很亮很舒适 4. 房子方便看,基本可以随时可以参观,欢迎随时来
-
小区配套问经纪人
白桥苑养生住宅社区成熟,环境优雅,美观大方,生态良好,邻里和睦,祥和文明,康乐和谐。内部管理完善,居住人群文化素质层次高,稳定,地理环境优越,交通便利,周边配套设施完善,各种档次的饭店、酒楼、、文化活动馆等休闲场所应有尽有,满足生活所需,为您的舒适生活,增添无限惬意。
周边配套
交通综合评分
查看全部超过北京96.7%的小区
-
地铁公交
10.0
-
城际交通
4.5
本月均价 63356元/m²
环比上月 下跌 0.35%
同比去年 下跌 28.29%
猜你喜欢
同小区其它房源
户型齐全,主打户型方正,明厨,双阳台四居
白桥苑公寓户型主要有176平-206平的户型方正,明厨,双阳台的四居 、121平-121平的户型方正,明厨,双阳台的二居 。
*获取完整户型报告,同时会有免费语音讲解服务
-
80780元/㎡
本月挂牌均价
-
1.41%
环比上月
买房加房产交流群,省钱不踩雷
3000+人正在热聊
- 免费咨询
- 专业服务
- 区域解读
- 户型分析

