潭柘寺镇+檀谷·若丘 低密度电梯洋房三面朝南+三居双明卫
-
300万
总价
-
3室2厅2卫
户型
-
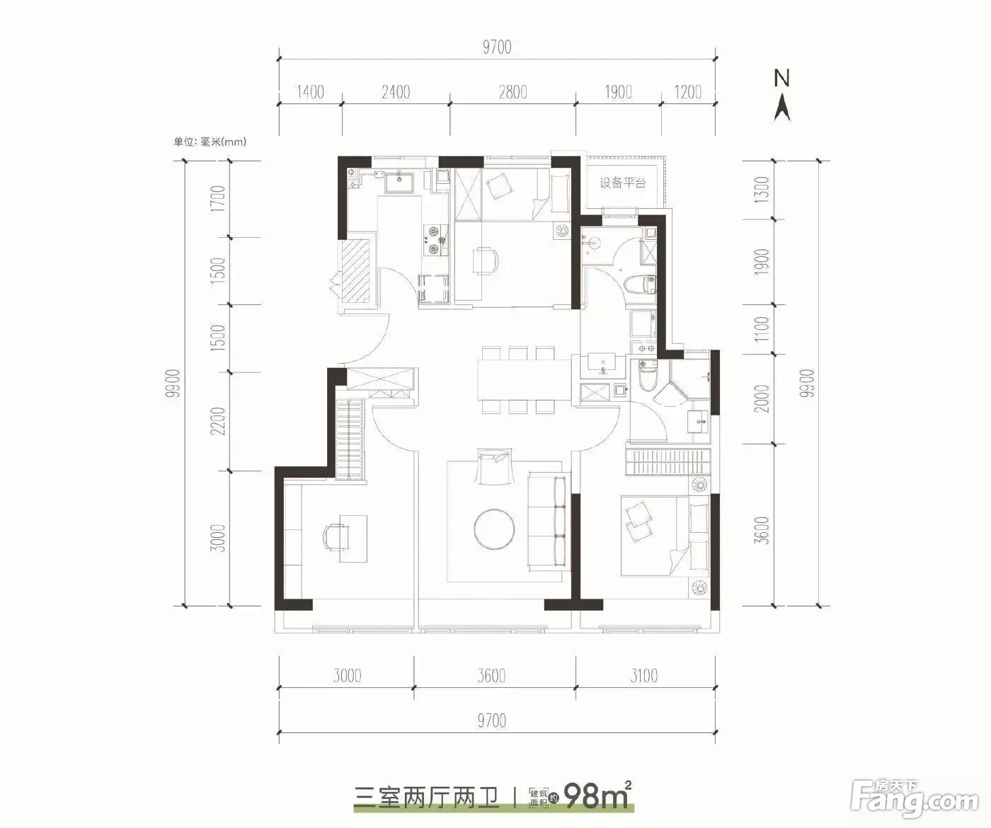
99㎡
建筑面积
买房加房产交流群,省钱不踩雷
3000+人正在热聊
-
单价
30303元/平米
- 挂牌价格解析
-
楼层
中层/5层
- 咨询楼层
-
套内
98㎡
- 咨询套内使用面积
-
楼型
板楼
-
朝向
南北
-
装修
精装修
-
年代
2023
-
发布
2025-09-29
-
地铁
暂无数据
-
咨询总首付
首付约89.1万
首付税费及佣金情况 -
深度测评
小区檀香府(门头沟-门头沟其它)
-
更多
楼户比、楼层高度、交易历史、抵押信息
房源描述(1)
-
核心卖点问经纪人
檀谷·项目在售房源: 洋房/叠拼/联排建筑面积约 124㎡、135㎡、145㎡、245㎡、320㎡ [玫瑰]总价470万-1450万 现房,即买即住,135平米三居,精装单价3.8万起 若丘·项目在售房源: 产权年限:70年住宅 【99㎡南北三居390万起】 南向9.7米大面宽大面积采光全明格局LDK餐客一体化 【138㎡南北四居640万起】 南向三面宽面宽:进深≈1:1 双卧套房设计LDK餐客一体
-
业主心态问经纪人
交通便利,出小区就是108国道莲石路到西四环不堵车,出则繁华入则宁静
-
小区配套问经纪人
小区环境优雅,配套成熟,周边交通便利,居住舒适。
-
服务介绍问经纪人
不收任何中间费用。 拥有折扣,无偿提供咨询,一站多项目同时对比分析,节约大量时间,随时陪同看房。
-
税费分析房贷计算
此房源为一手房源,只有契税和公共维修基金。
周边配套
本月均价 38805元/m²
环比上月 上涨 0.92%
同比去年 上涨 2.31%
猜你喜欢
同小区其它房源
户型齐全,主打南北通透,客厅朝南三居
京投发展·檀谷户型主要有135平-245平的南北通透,客厅朝南的三居 、124平-145平的南北通透,客厅朝南的四居 。
*获取完整户型报告,同时会有免费语音讲解服务
-
22320元/㎡
本月挂牌均价
-
0.15%
环比上月
买房加房产交流群,省钱不踩雷
3000+人正在热聊
- 免费咨询
- 专业服务
- 区域解读
- 户型分析


