宾阳里 69.16平2居 南北向精装修 随时签约
-
125万
总价
-
2室1厅1卫
户型
-
69.16㎡
建筑面积
买房加房产交流群,省钱不踩雷
3000+人正在热聊
-
单价
18074元/平米
- 挂牌价格解析
-
楼层
中层/6层
- 咨询楼层
-
套内
暂无数据
- 咨询套内使用面积
-
楼型
板楼
-
朝向
南北
-
装修
精装修
-
年代
1998
-
发布
2025-11-04
-
地铁
暂无数据
-
咨询总首付
首付约36.1万
首付税费及佣金情况 -
深度测评
小区宾阳里(密云-宾阳)
-
更多
楼户比、楼层高度、交易历史、抵押信息
房源描述(1)
-
核心卖点问经纪人
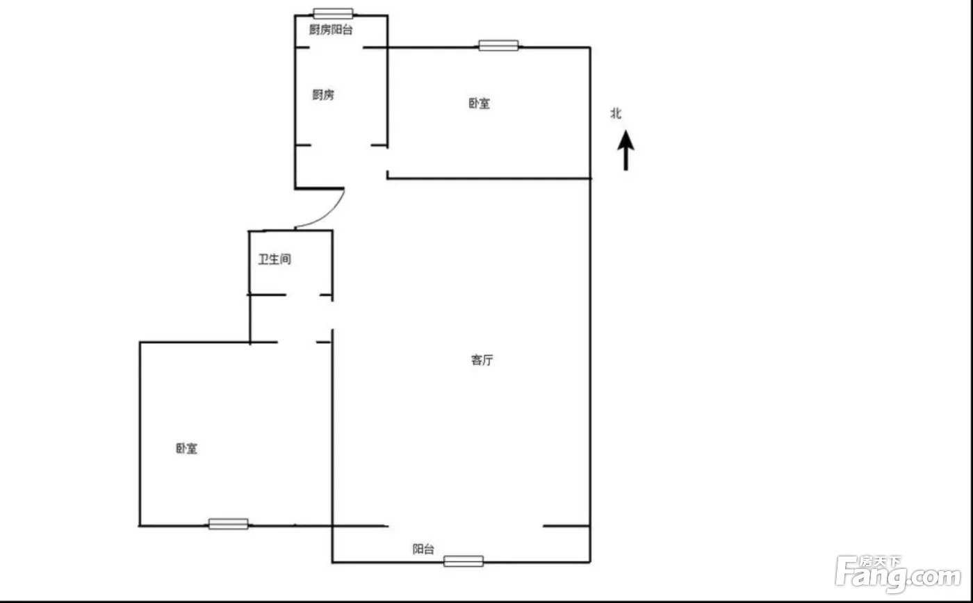
宾阳里这套南北通透的两居室位于法制公园附近,建筑面积69.16平米,总价135万,单价仅19520元/平米。该房源为6层板楼的中层位置,1998年建成,房本已满五年,税费优势明显。户型设计合理,包含两间卧室、客厅、厨房、卫生间和阳台,动静分区明确,精装修保养良好,可拎包入住。 小区地理位置优越,周边生活配套成熟,交通便利。南北朝向的户型设计保证了良好的采光和通风效果,中层楼层避免了低层的潮湿和高层的不便。作为密云区的成熟社区,宾阳里居住氛围浓厚,物业管理规范,是刚需和改善家庭的优质选择。
-
小区配套问经纪人
出小区步行5即是沙河早市,买菜、生活用品很方便 出小区门口即是980车站及密云城区各路公交站,出行便捷 小区附近有银行、生活超市,便利店、宾阳社区医院等,完善的生活配套,让生活便捷无忧
-
服务介绍问经纪人
交易流程:签定房地产买卖合同→→付首付→→网签、银行面签 →→批贷→→过户→→交房。
-
税费分析房贷计算
房屋产权干净,税费清晰,按照国家规定缴纳相关税费,购买该房屋仅产生契税。
-
户型解读问经纪人
室内户型布局合理,南北通透,69平的正规2居室,中间楼层,采光好通风佳,适合各年龄段人群居住
周边配套
交通综合评分
查看全部超过北京91.1%的小区
-
地铁公交
5.0
-
驾车出行
10.0
-
城际交通
5.0
本月均价 17347元/m²
环比上月 下跌 1.78%
同比去年 下跌 12.14%
猜你喜欢
同小区其它房源
户型齐全,主打明厨,客厅朝南二居
宾阳里户型主要有50平-100平的明厨,客厅朝南的二居 、68平-134平的户型方正,明厨,明卫的三居 、39平-60平的户型方正,主卧朝南的一居 。
*获取完整户型报告,同时会有免费语音讲解服务
-
19431元/㎡
本月挂牌均价
-
0.45%
环比上月
买房加房产交流群,省钱不踩雷
3000+人正在热聊
- 免费咨询
- 专业服务
- 区域解读
- 户型分析


