正南 汤HOUSE别墅 4室2厅 精装修
-
730万
总价
-
4室2厅3卫
户型
-
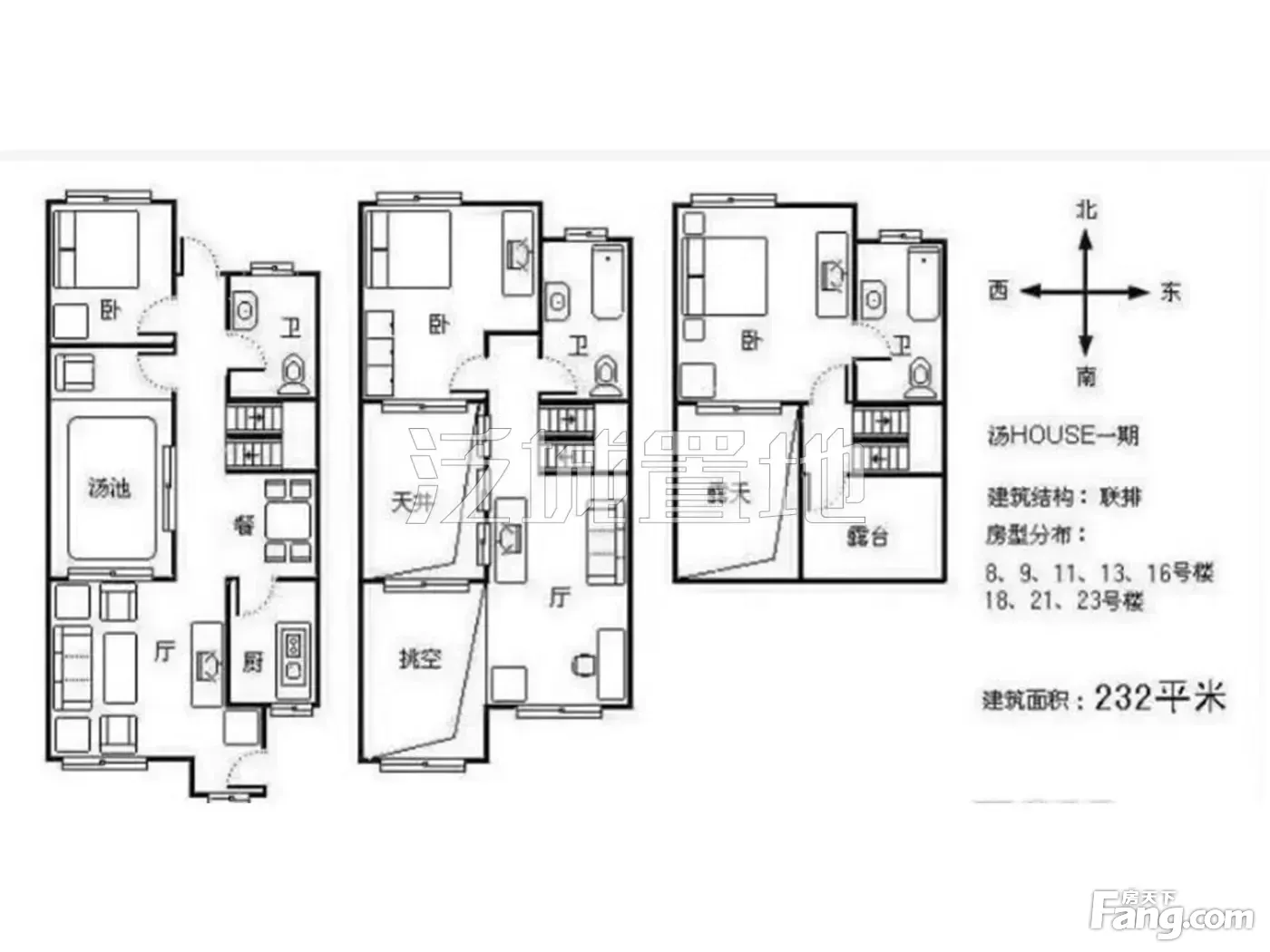
232.26㎡
建筑面积
买房加房产交流群,省钱不踩雷
3000+人正在热聊
加入群聊
-
单价
31430元/平米
- 挂牌价格解析
-
楼层
1层
- 咨询楼层
-
套内
暂无数据
- 咨询套内使用面积
-
楼型
独栋
-
朝向
南
-
装修
精装修
-
年代
2000
-
发布
2025-06-22
-
地铁
暂无数据
-
咨询总首付
首付约241.9万
首付税费及佣金情况 -
深度测评
小区汤HOUSE别墅(昌平-小汤山)
-
更多
楼户比、楼层高度、交易历史、抵押信息
房源描述(1)
-
核心卖点问经纪人
相信为您推荐的这套房子您一定会满意,赶快行动吧,先到先得! 房屋年代∶2000年,房屋面积∶232.26平方米,朝向∶正南 1. 小区配备良好物业管理,让你享受宾至如归的服务; 2. 小区人文素质高,是您的居家的品质选择; 3. 小区环境安静舒适,让您拥有高品质的生活环境; 4. 小区绿化高,绿树成荫鸟语花香让您随时呼吸到新鲜空气。
-
业主心态问经纪人
房东置换,诚心出售,可以再谈,欢迎看房,随时恭候。
-
小区配套问经纪人
小区地理位置佳,绿化环境优越整洁,居民素质高,物业管理完善,适宜居住
-
服务介绍问经纪人
本人做房产多年,一直本着专业的房产知识,为您服务,我会在短的时间内帮您买好满意的房子,不让您错失任何好房子,更不让您每天为买房的事烦心,欢迎随时拨打我电话。
-
税费分析房贷计算
关于本房的税费信息情况,请电话联系我,我将详细的为您讲解!
-
户型解读问经纪人
房屋拥有相对宽松的尺寸,布局通透,动静分离,设计豪华
周边配套
地址:小汤山镇中心区南侧,大柳树环岛向西1000米
交通综合评分
查看全部5.0
“一般”
超过北京31.6%的小区
-
地铁公交
5.0
-
驾车出行
10.0
猜你喜欢
同小区其它房源
户型齐全,主打户型方正,客厅朝南,主卧朝南三居
汤HOUSE别墅户型主要有142平-232平的户型方正,客厅朝南,主卧朝南的三居 、63平-90平的明厨,明卫的一居 、71平-95平的明厨,明卫,客厅朝南,全明格局的二居 。
*获取完整户型报告,同时会有免费语音讲解服务
-
29163元/㎡
本月挂牌均价
-
1.12%
环比上月
买房加房产交流群,省钱不踩雷
3000+人正在热聊
加入群聊
- 免费咨询
- 专业服务
- 区域解读
- 户型分析
免责声明:房源信息由网站用户提供,其真实性、合法性由信息提供者负责,最终以政府部门登记备案为准。本网站不声明或保证内容之正确性和可靠性,购买该房屋时,请谨慎核查。入学情况仅凭历史经验总结,在此不承诺升学事宜。请您在签订合同之前,切勿支付任何形式的费用,以免上当受骗。


