【一小三中】密云世纪家园电梯 160平大户型仅252万
-
252万
总价
-
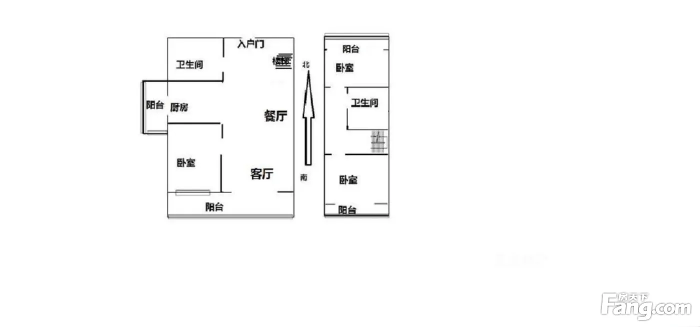
3室2厅2卫
户型
-
160.9㎡
建筑面积
买房加房产交流群,省钱不踩雷
3000+人正在热聊
-
单价
15662元/平米
- 挂牌价格解析
-
楼层
高层/10层
- 咨询楼层
-
套内
暂无数据
- 咨询套内使用面积
-
楼型
板楼
-
朝向
南北
-
装修
精装修
-
年代
2002
-
发布
2025-11-07
-
地铁
暂无数据
-
咨询总首付
首付约85.6万
首付税费及佣金情况 -
深度测评
小区密云世纪家园(密云-宾阳)
-
更多
楼户比、楼层高度、交易历史、抵押信息
房源描述(1)
-
核心卖点问经纪人
这套位于密云世纪家园的高层住宅,建筑面积达160.9平米,南向采光充足,现仅售252万元,单价15848元/平米,性价比极高。小区地处密云宾阳新中街与东源路交叉口东南角,周边生活配套成熟,距离密云县中医医院仅一步之遥。 房源为2002年建成的简装修住宅,总高10层的高层建筑,上下两层,分层居住空间更合理。160.9平米的超大居住面积,为购房者提供了宽敞舒适的居住体验。南向朝向保证了室内充足的采光时间,让居住环境更加明亮温馨。
-
业主心态问经纪人
业主换房,诚意出售,本人从事房产十五年,我会根据您的需求为您量身找房!
-
小区配套问经纪人
周边配有密云中医院、宾阳、沿湖社区医院,临近鼓楼商业街,配有物美超市,国泰商场超市,奥特莱斯商场,西单商场超市及各种便利店、水果店等。 临近一小三中二中,均为密云学校,满足孩子一站式学位的需求,就近上学都很方便。
-
服务介绍问经纪人
交易流程:签定房地产买卖合同→→付首付→→网签、银行面签 →→批贷→→过户→→交房。
-
税费分析房贷计算
房屋产权干净,税费清晰,按照国家规定缴纳相关税费,购买该房屋仅产生契税。
周边配套
交通综合评分
查看全部超过北京47.5%的小区
-
地铁公交
5.0
-
驾车出行
10.0
-
城际交通
5.0
本月均价 21044元/m²
环比上月 下跌 1.5%
同比去年 下跌 10.94%
猜你喜欢
同小区其它房源
户型齐全,主打明卫,明厨,客厅朝南,全明格局,主卧朝南三居
密云世纪家园户型主要有95平-223平的明卫,明厨,客厅朝南,全明格局,主卧朝南的三居 、78平-148平的明厨,客厅朝南,主卧朝南的二居 。
*获取完整户型报告,同时会有免费语音讲解服务
-
19206元/㎡
本月挂牌均价
-
1.16%
环比上月
买房加房产交流群,省钱不踩雷
3000+人正在热聊
- 免费咨询
- 专业服务
- 区域解读
- 户型分析


