观小区湖景,8万,3居单价总价蕞好的房,同售旁边新房单价12
-
2500万
总价
-
3室1厅2卫
户型
-
286.21㎡
建筑面积
买房加房产交流群,省钱不踩雷
3000+人正在热聊
-
单价
87348元/平米
- 挂牌价格解析
-
楼层
低层/20层
- 咨询楼层
-
套内
266.21㎡
- 咨询套内使用面积
-
朝向
北
-
装修
精装修
-
年代
2011
-
发布
2025-03-17
-
地铁
距17号线左家庄约536米
-
咨询总首付
首付约827.1万
首付税费及佣金情况 -
深度测评
小区当代MOMA(东城-东直门)
-
更多
楼户比、楼层高度、交易历史、抵押信息
房源描述(1)
-
核心卖点问经纪人
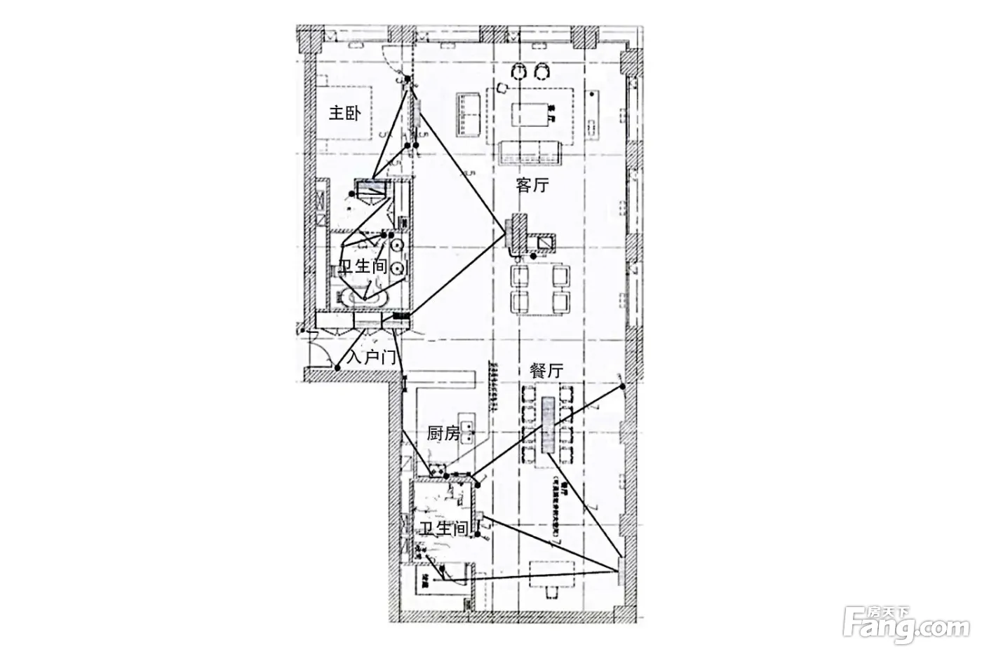
户型描述 此房目前是大一居格局,可以改成4居或者5居都可以 景观特点 东北观小区6000平米映水湖湖景,位置好,比较安静,可以看到小区园林 装修特点 开发商统一装修,黑色实木复合地板,欧洲进口厨电 保养状况 此房保养比较好,业主很爱惜房屋,每个月都做保养
-
业主心态问经纪人
房东置换,诚心出售,价格可以再谈,欢迎看房,随时恭候。
-
小区配套问经纪人
小区地理位置佳,绿化环境优越整洁,居民素质高,物业管理完善,适宜居住
-
服务介绍问经纪人
本人做房产多年,一直本着专业的房产知识,为您服务,我会在短的时间内帮您买好满意的房子,不让您错失任何好房子,更不让您每天为买房的事烦心,欢迎随时拨打我电话。
-
税费分析房贷计算
关于本房的税费信息情况,请电话联系我,我将详细的为您讲解!
-
户型解读问经纪人
房屋拥有相对宽松的尺寸,布局通透,动静分离,设计豪华
周边配套
交通综合评分
查看全部超过北京85.5%的小区
-
地铁公交
10.0
-
驾车出行
10.0
本月均价 100251元/m²
环比上月 下跌 2.06%
同比去年 下跌 18.1%
猜你喜欢
同小区其它房源
户型齐全,主打客厅朝南三居
当代MOMA户型主要有177平-418平的客厅朝南的三居 、97平-211平的客厅朝南,主卧朝南的二居 、86平-125平的户型方正,客厅朝南的一居 。
*获取完整户型报告,同时会有免费语音讲解服务
-
95316元/㎡
本月挂牌均价
-
0.75%
环比上月
买房加房产交流群,省钱不踩雷
3000+人正在热聊
- 免费咨询
- 专业服务
- 区域解读
- 户型分析


