新街口,冠英园小区,满五公房,带正规大客厅,低楼层,楼龄新
-
1050万
总价
-
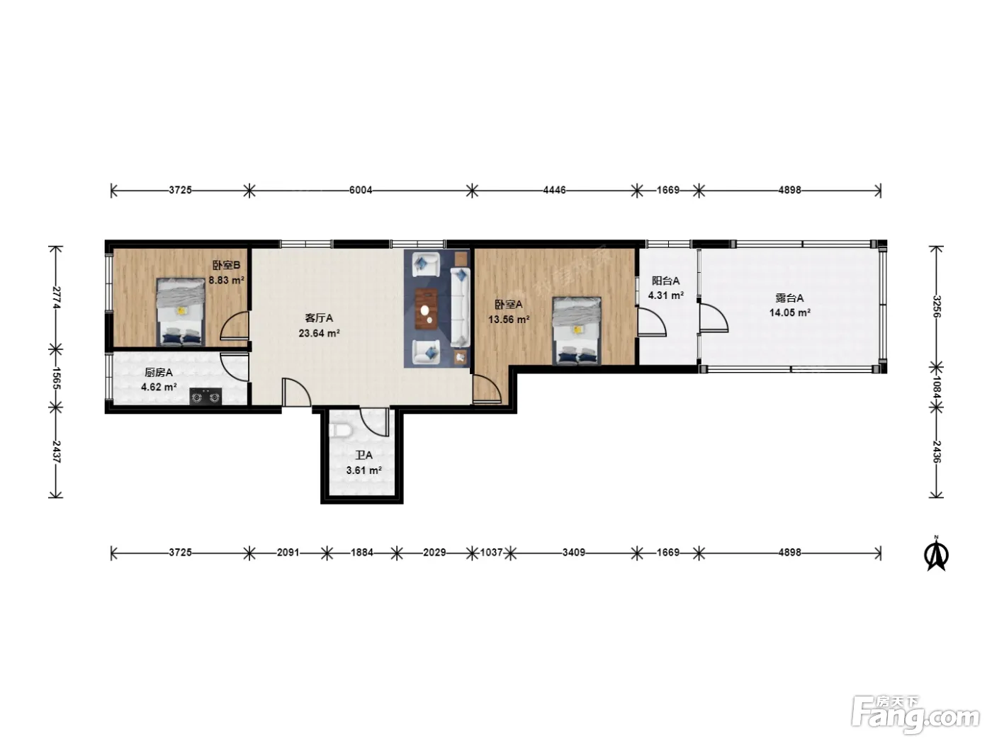
2室1厅1卫
户型
-
79.7㎡
建筑面积
买房加房产交流群,省钱不踩雷
3000+人正在热聊
加入群聊
-
单价
131744元/平米
- 挂牌价格解析
-
楼层
低层/10层
- 咨询楼层
-
套内
暂无数据
- 咨询套内使用面积
-
楼型
板楼
-
朝向
东西
-
装修
精装修
-
年代
1998
-
发布
2024-11-07
-
地铁
距4号线大兴线新街口站约308米
-
咨询总首付
首付约660万
首付税费及佣金情况 -
深度测评
小区冠英园(西城-西直门)
-
更多
楼户比、楼层高度、交易历史、抵押信息
房源描述(1)
周边配套
地址:西直门内大街赵登禹路西侧
交通综合评分
查看全部8.2
“较好”
超过北京74.9%的小区
-
地铁公交
10.0
-
驾车出行
10.0
-
城际交通
4.0
本月均价 124498元/m²
环比上月 上涨 5.37%
同比去年 下跌 3.07%
猜你喜欢
同小区其它房源
户型齐全,主打户型方正,双阳台,主卧朝南二居
冠英园户型主要有53平-118平的户型方正,双阳台,主卧朝南的二居 、84平-160平的户型方正,双阳台,主卧朝南的三居 、44平-63平的明厨,双阳台的一居 。
*获取完整户型报告,同时会有免费语音讲解服务
买房加房产交流群,省钱不踩雷
3000+人正在热聊
加入群聊
- 免费咨询
- 专业服务
- 区域解读
- 户型分析
免责声明:房源信息由网站用户提供,其真实性、合法性由信息提供者负责,最终以政府部门登记备案为准。本网站不声明或保证内容之正确性和可靠性,购买该房屋时,请谨慎核查。入学情况仅凭历史经验总结,在此不承诺升学事宜。请您在签订合同之前,切勿支付任何形式的费用,以免上当受骗。


