【万科边户合院】155平精装修地上两层地下两层439万
-
439万
总价
-
4室2厅4卫
户型
-
155㎡
建筑面积
买房加房产交流群,省钱不踩雷
3000+人正在热聊
-
单价
28323元/平米
- 挂牌价格解析
-
楼层
底层/3层
- 咨询楼层
-
套内
暂无数据
- 咨询套内使用面积
-
楼型
钢混
-
朝向
南
-
装修
精装修
-
年代
2018
-
发布
2024-10-18
-
咨询总首付
首付约149.1万
首付税费及佣金情况 -
深度测评
小区万科弗农小镇住宅(密云-密云水库别墅区)
-
更多
楼户比、楼层高度、交易历史、抵押信息
房源描述(1)
-
核心卖点问经纪人
0此房的优点是端户 无遮挡采光好通透性强 1全密云性价比的类独栋别墅,价格非常之低,几乎是全密云地区的实惠价格。 2屋前拥有大的花园面积,为您的生活提供了广阔的拓展空间,让您尽享奢华感受。 万科弗农小镇: 项目周边环境: 三山环抱(云佛山、云蒙山与燕山) 两水环绕(京密饮水渠、白河)
-
业主心态问经纪人
3 业主诚心换房出售 房源真实有效 看房后有较大议价空间 4业主很随和,好沟通,家里意见统一,是非常靠谱的房源
-
小区配套问经纪人
3项目周边环境: 4三山环抱(云佛山、云蒙山与燕山) 两水环绕(京密饮水渠、白河 5高端商业:万象汇、西单商场、国泰百货、奥特莱斯、物美超市、密云商场等。 医疗配套:密云县医院(三甲级医院)、密云中医院、密云心脑血管病医院等。
-
服务介绍问经纪人
本人长年专注于密云鼓楼、万象汇商圈及密云高档公寓、别墅市场的房产经纪。 本人长年专注于密云地区高档公寓、别墅类产品的房产经纪。因为有对产品的专注和专业,所以必能为您提供品质级顾问服务。
-
税费分析房贷计算
1 按照国家规定缴纳相关税费,购买该房屋仅产生契税、 2根据您的个人购房情况给您设计合理既有方案 可以随时电话咨询我
-
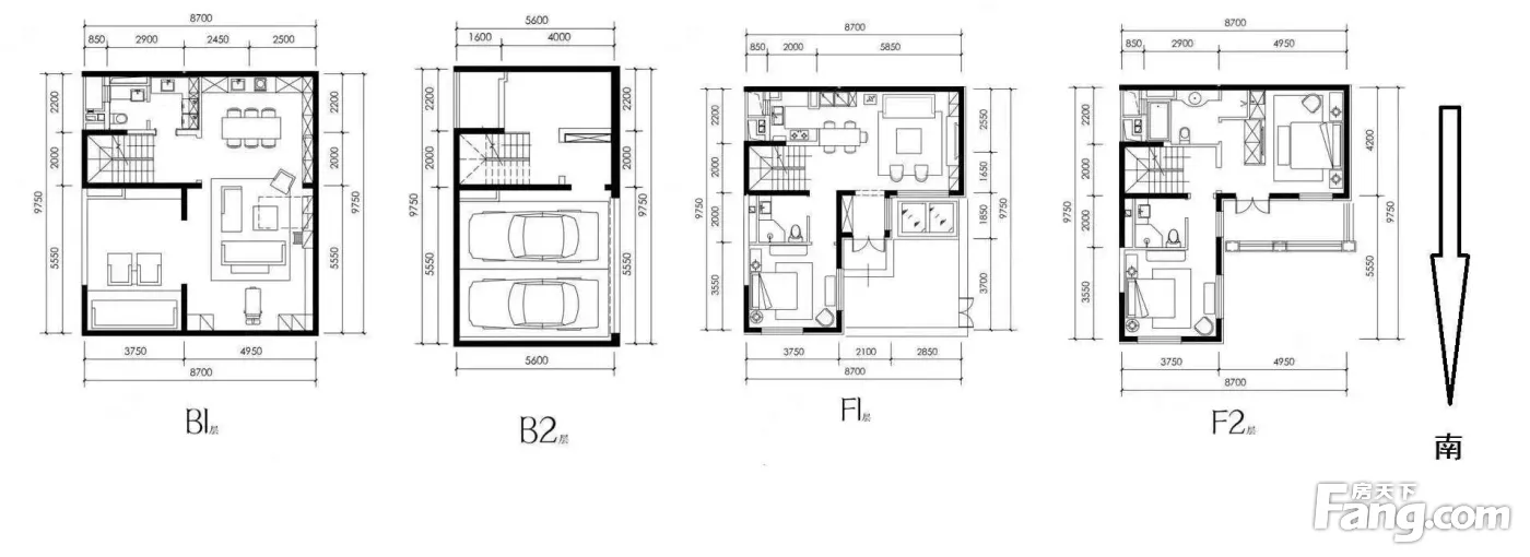
户型解读问经纪人
万科合院 1万科独栋合院 精装修 地上三层 地下两层 上下楼都有电梯。 2一层有老人房 厨房 餐厅 客厅 卫生间 活动区域 3二层有两个卧室两个卫生间 每个人都有独立的空间 还有大可以喝茶纳凉的好的方 -1层式设计的娱乐区 隔音效果好 不打扰邻居 -2层是车库两个车位居家使用极其方便 1 全新现代风格精装修 简约 时尚 拎包就能住!
周边配套
-
17558元/㎡
本月挂牌均价
-
1.31%
环比上月
买房加房产交流群,省钱不踩雷
3000+人正在热聊
- 免费咨询
- 专业服务
- 区域解读
- 户型分析


