哈罗城 中间楼层 双卫生间 南北通透 精装修 商品房
-
93万
总价
-
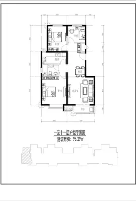
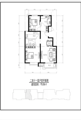
3室2厅2卫
户型
-
122.51㎡
建筑面积
买房加房产交流群,省钱不踩雷
3000+人正在热聊
-
单价
7591元/平米
- 挂牌价格解析
-
楼层
中层/26层
- 咨询楼层
-
套内
暂无数据
- 咨询套内使用面积
-
楼型
板楼
-
朝向
南北
-
装修
精装修
-
年代
2017
-
发布
2025-06-10
-
深度测评
小区哈罗城(竞秀-体育新城)
-
更多
楼户比、楼层高度、交易历史、抵押信息
房源描述(1)
-
核心卖点问经纪人
1、户型好,卧室朝南采光充足享受阳光的温暖! 2、单价低、总价便宜、低于市场价格。 4、交通方便,公交站四通八达,给你出行带来便利 。 5、周边生活设施齐全,商场、超市、菜市场。 6、本房源户型图与房源照片与此房源一致。 7、您看到的这个信息,是我经过仔细筛选出来的房子,欢迎来电预约看房! 优惠热线:187 3123 1591
-
业主心态问经纪人
小区位置优越,交通四通八达,方便业主出行.绿化率高,楼间距大全天采光,居民素质高,配套有健身器材,小型篮球场,图书室。小区地下停车位可供居民使用,还配备有充电桩,停车位充足,***人车分流,小区内24**保安巡逻优惠热线:187 3123 1591
-
小区配套问经纪人
位置:小区地理位置佳,绿化率高,居民素质高配套:有健身器材,小型篮球场,可供小区居民使用 车位:停车位充足,建有地上停车场和地下车库 保安:小区内24保安巡逻优惠热线:187 3123 1591
-
服务介绍问经纪人
本人从事房地产多年,公司有大量好房源,欢迎进入我的店铺查看,欢迎随时电话咨询,相信我的专业,为您置业安家保驾护航。优惠热线:187 3123 1591
-
税费分析房贷计算
优惠热线:187 3123 1591
周边配套
本月均价 6356元/m²
环比上月 下跌 2.86%
同比去年 下跌 18.78%
猜你喜欢
同小区其它房源
户型齐全,主打户型方正三居
哈罗城户型主要有93平-121平的户型方正的三居 、80平-97平的户型方正的二居 、125平-148平的采光充足,客厅朝南的四居 。
*获取完整户型报告,同时会有免费语音讲解服务
-
7921元/㎡
本月挂牌均价
-
1.62%
环比上月
买房加房产交流群,省钱不踩雷
3000+人正在热聊
- 免费咨询
- 专业服务
- 区域解读
- 户型分析


